Helping Hands
Containers Transitional Housing
PROJECT BACKGROUND
“Helping Hands” is a project for setting up a mutually supporting system for the residents. The intimate neighborhood allows the residents to tackle living difficulties together.
PROJECT CONCEPT
“Helping hands” does not only rely on their neighbors but also themselves. The project provides a platform for the residents to equip themselves with life skills and earn extra money at the same time. They would be able to create better living qualities after moving out.
-

Helping Hands / Project Concept
-

Helping Hands / Urban Strategy, Site Plan
-

Helping Hands / Moment in “Helping Hands”
-

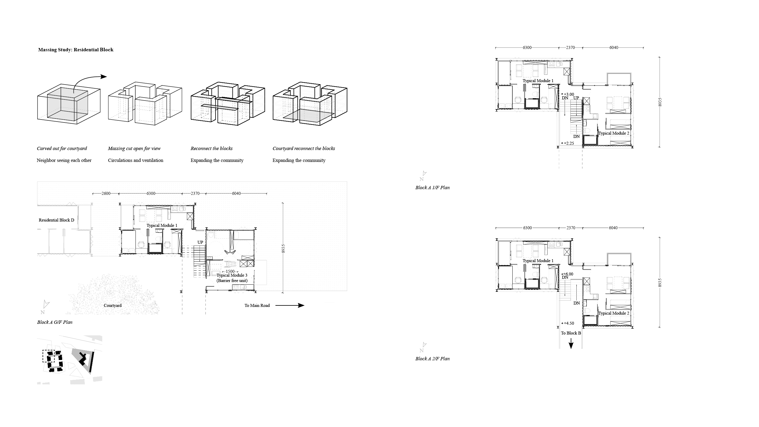
Helping Hands / Massing Study, Residential Block Floor Plans
-

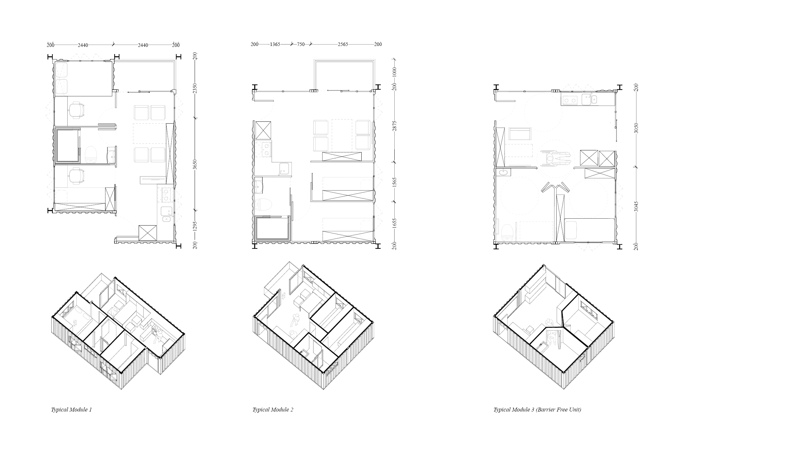
Helping Hands / Residential Unit Plans
-

Helping Hands / Ancillary Facilities Block and Energy Conservation Strategy
-

Helping Hands / Passive House Design: Double-skinned Rattan Façade
-

Helping Hands / Passive House Design: Creating Microclimate for Cooling