Parasitic Mutualism
PROJECT BACKGROUND
Parasitism happens at every corner of the city. Architecture functions as hosts and human beings as parasites.
PROJECT CONCEPT
This project investigates the parasitic mechanism being applied to the relationship between local culinary artists and local communities in Sham Shui Po and how they can mutually benefit each other. The purpose of the design is for setting up a new self-sustained community typology in Sham Shui Po.
-

Parasitic Mutualism / Project Content
-

Parasitic Mutualism / Design Concept
-

Parasitic Mutualism / Site Location
-

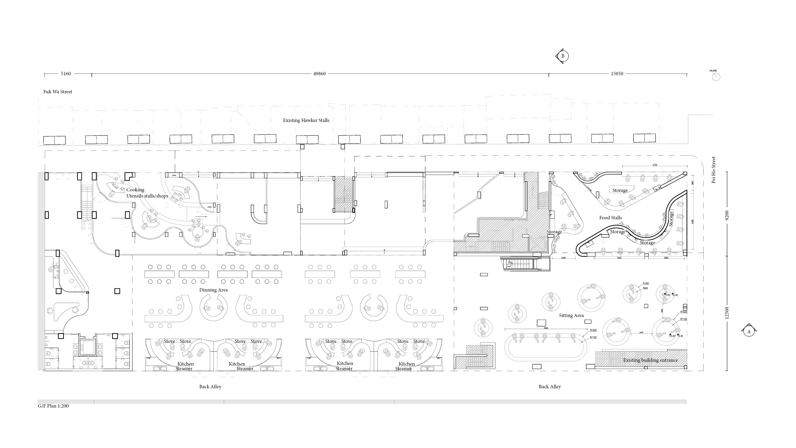
Parasitic Mutualism / Ground Floor Plan
-

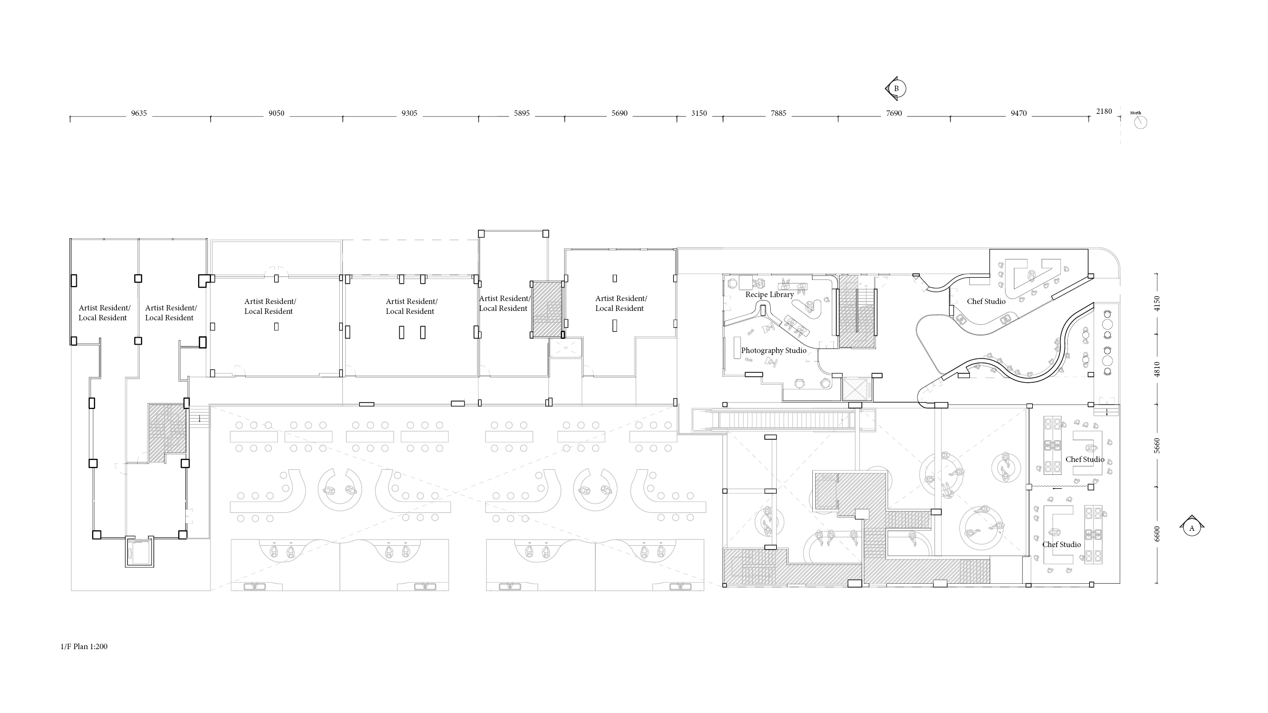
Parasitic Mutualism / 1st Floor Plan
-

Parasitic Mutualism / Diagrams
-

Parasitic Mutualism / User Activities