Joyful Living | Co-living space Design
Live together and survive together
PROJECT BACKGROUND
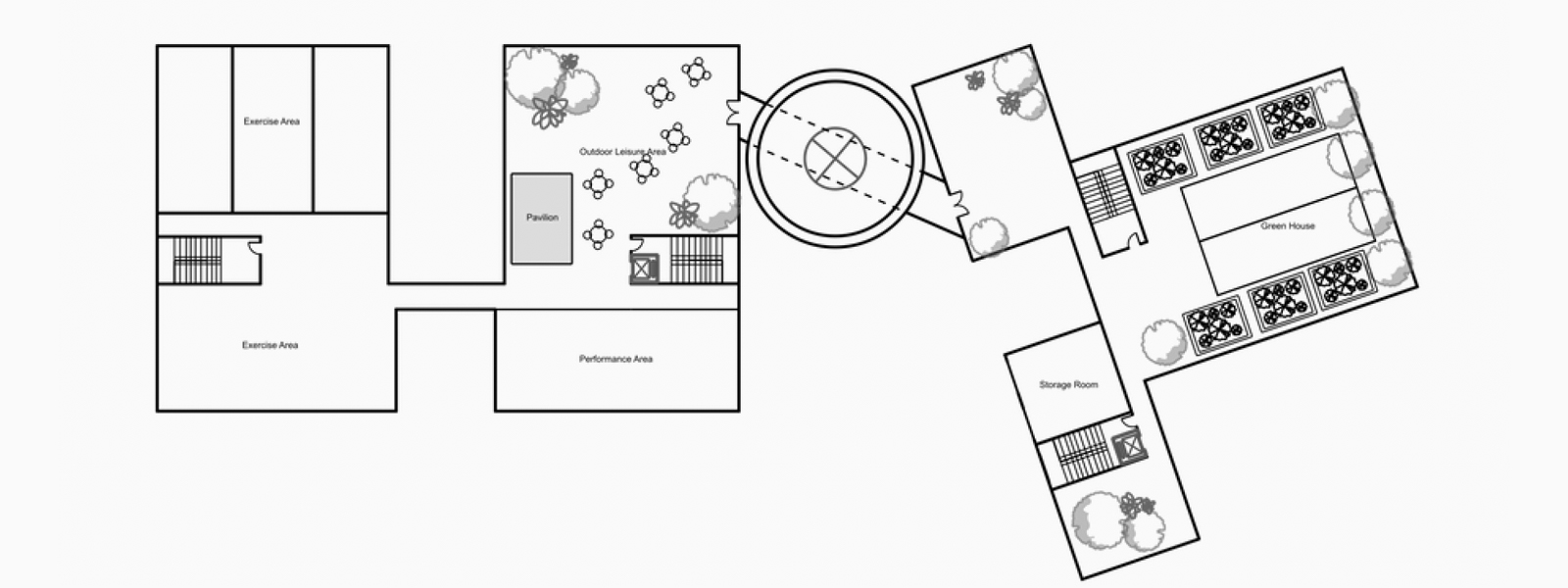
Low-income families suffer from basic living problems such as limited space and poor living conditions. To address their needs, co-living space could be a solution. It is a shared space for young parents and children with lots of activities and exchange.
PROJECT CONCEPT
“Sharing” and “Togetherness” are the main design concepts of co-living spaces. There are common circular spaces in the center which connects different blocks and floors. These common and overlapping spaces allow families to interact with each other and share their experiences.


