Envisioning a Post-Covid Retirement Home
PROJECT BACKGROUND
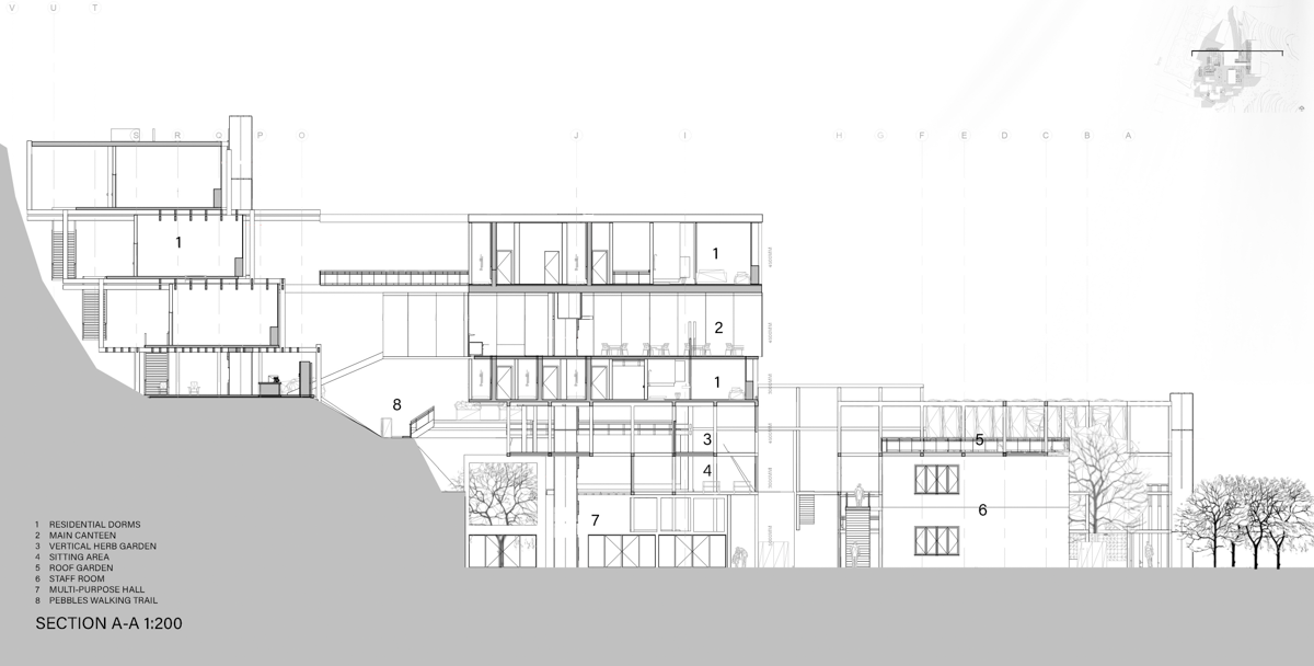
This project proposes a post-COVID retirement home that aims at providing accommodation and uplifting the residents’ mental and physical health while maintaining social distancing measures. The primary design is to have active programs on the lowest floor and passive and tranquil spaces on higher floors. At the same time, the views and perspectives of users have been taken into account. Before diving into the design, some research and background checks were done on other retirement homes in Hong Kong. With this being the title of my dissertation paper, I have gained a deeper understanding on the nature and culture of local retirement homes.
-

Envisioning a Post-Covid Retirement Home / Plan
-

Envisioning a Post-Covid Retirement Home / Project Rendering
-

Envisioning a Post-Covid Retirement Home / Project Rendering
-

Envisioning a Post-Covid Retirement Home / Plan
-

Envisioning a Post-Covid Retirement Home / Section