PROJECT BACKGROUND
Sham Shui Po is an old district and has limited public spaces especially from Apliu Street to Tai Nan street. The design is to introduce digital art as a new element to Sham Shui Po and provide public spaces for people to use.
PROJECT CONCEPT
The new digital art center merges with the existing building to provide another perspective for visitors to understand more about the daily living of Sham Shui Po. To encourage intergenerational interaction in the old district, an amphitheater is designed for people to rest and watch digital art performance.
-

Beyond the Square / Design Concept
-

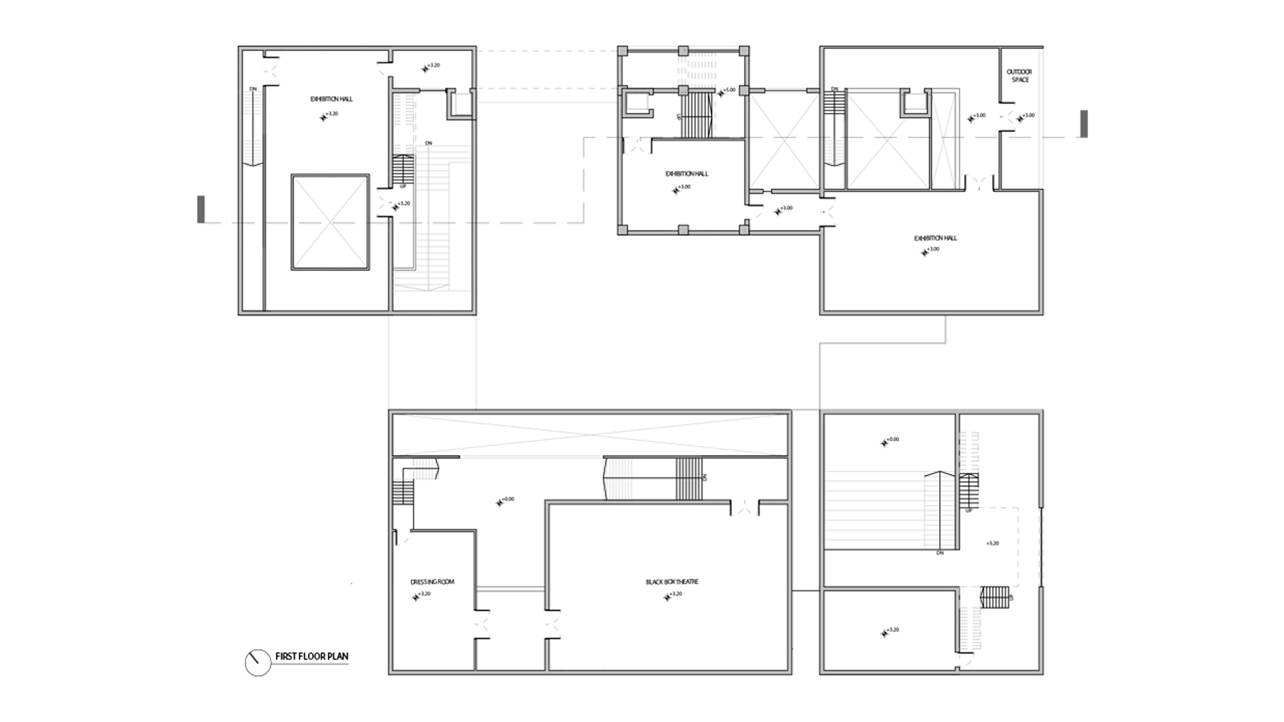
Beyond the Square / Floor Plan
-

Beyond the Square / Floor Plan
-

Beyond the Square / Exploded Diagram
-

Beyond the Square / Section
-

Beyond the Square / Project Rendering
-

Beyond the Square / Project Rendering
-

Beyond the Square / Project Rendering
-

Beyond the Square / Project Rendering
-

Beyond the Square / Project Rendering