Art of Initiation
PROJECT BACKGROUND
The site in Sham Shui Po is at an intersection where the main gathering point of the elders, ethnic minorities, and artist working studios can be found. This characteristic cannot be commonly seen in most places in Hong Kong and everyone is not familiar with this diverse relationship.
PROJECT CONCEPT
This design proposal focuses on blending in the elements of elders, ethnic minorities, and artists into the artist village by strengthening the internal sharing space within the building.
-

Art of Initiation / Mapping journey in Sham Shui Po
-

Art of Initiation / Program
-

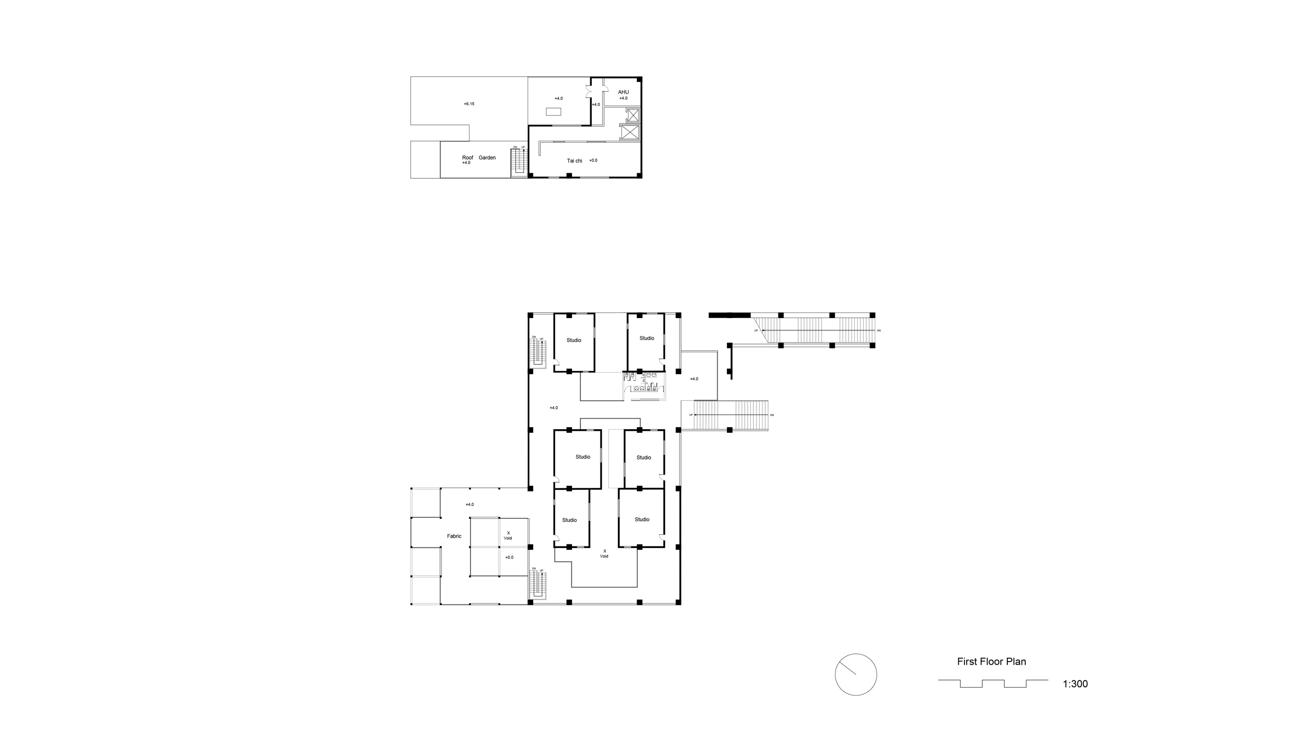
Art of Initiation / 1st Floor Plan
-

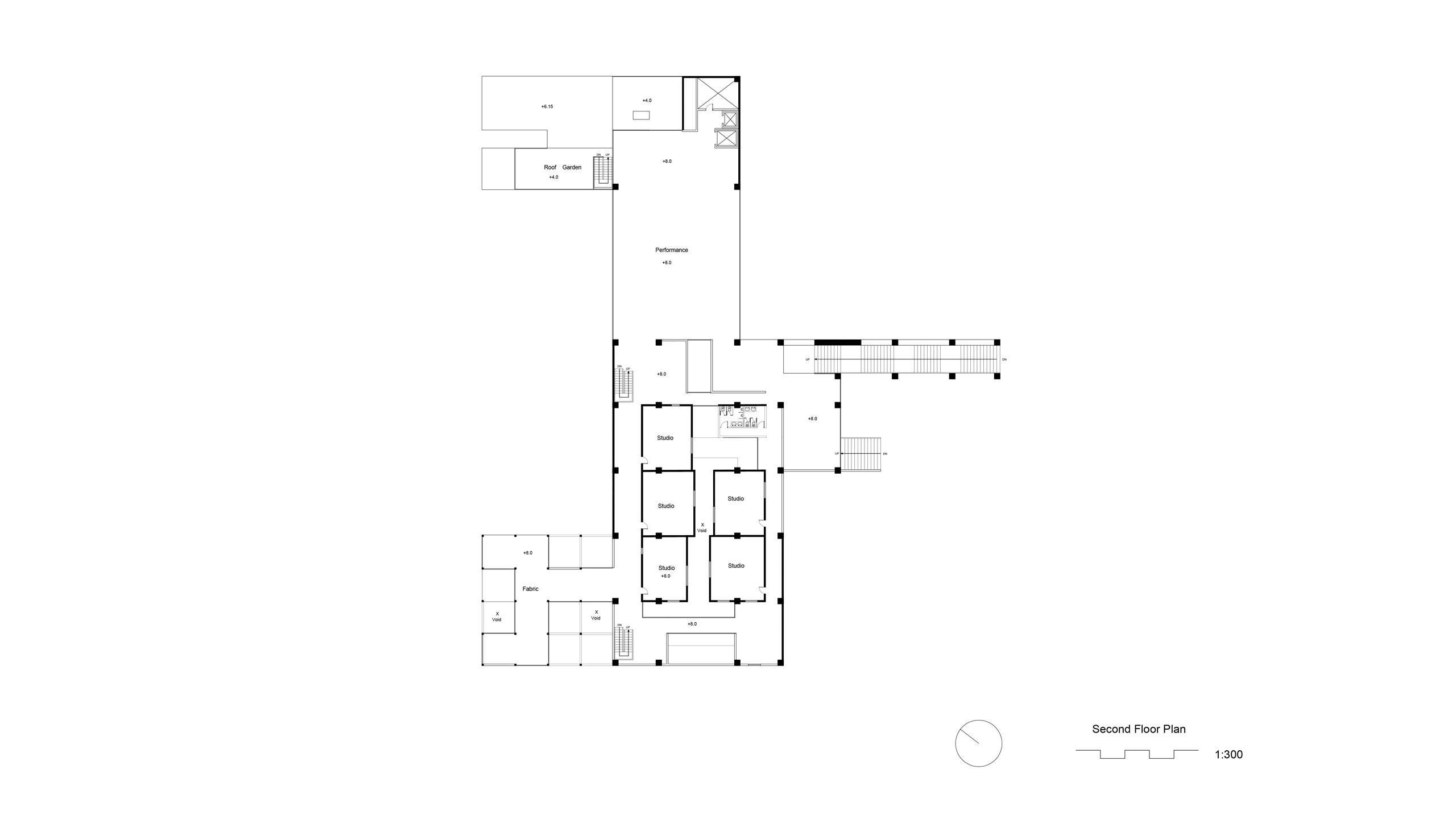
Art of Initiation / 2nd Floor Plan
-

Art of Initiation / Section AA
-

Art of Initiation / Section BB
-

Art of Initiation / Section CC
-

Art of Initiation / Fabric Display Area
-

Art of Initiation / Performance Area
-

Art of Initiation / Rest Area and Roof Garden