Jimmy Cheung C.t.

  • Blur

  • Blur / Program Arrangement

  • Blur / Concept Diagrams

  • Blur / Studio Sectional Drawing

  • Blur / Plaza Sectional Drawing

  • Blur / Project Rendering

  • Blur / Project Rendering

  • Blur / Project Rendering

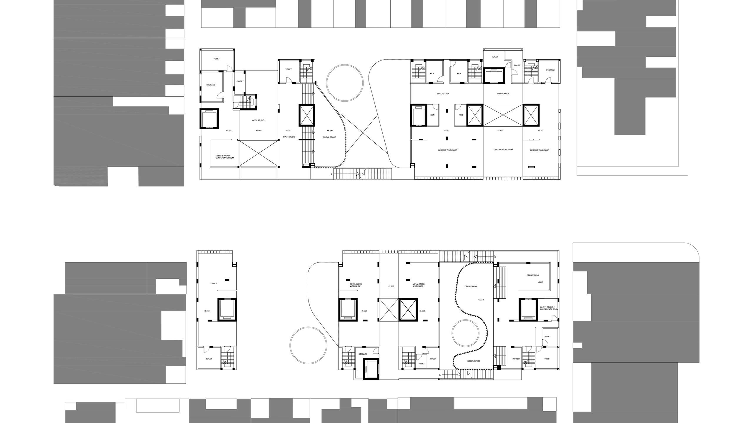
  • Blur / Ground Floor Plan

  • Blur / 1st Floor Plan