student-awards
- Merit Award
Communication . Connection
PROJECT BACKGROUND
In view of the characteristics of Tsuen Wan, market is not only a place to buy food, but also a public place, for entertainment and leisure. A stronger community connection and better communication can be established with this market.
PROJECT CONCEPT
The design idea is to attract users of different ages to increase the connections between the elderly and youth, thereby enhancing the relationship and cohesion of the locals.
-

Communication . Connection / Site Survey
-

Communication . Connection / Concept Sketch
-

Communication . Connection / Programme and Circulation Arrangements
-

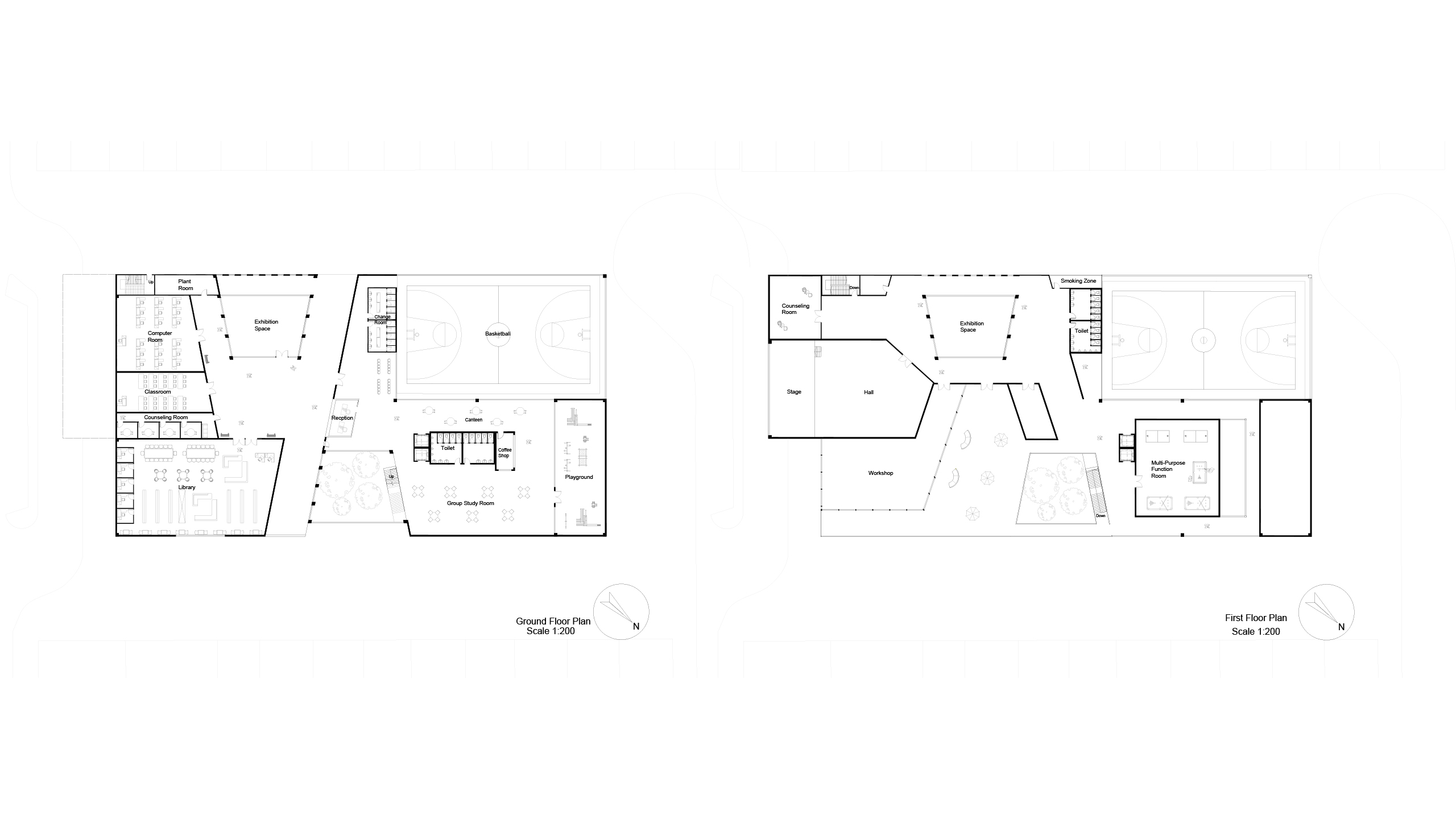
Communication . Connection / Floor Plan
-

Communication . Connection / Section
-

Communication . Connection / Project Rendering
-

Communication . Connection / Project Rendering
-

Communication . Connection / Project Rendering
-

Communication . Connection / Project Rendering
-

Communication . Connection / Project Rendering